Размер:
AAA
Цвет: CCC
Изображения Вкл.Выкл.
Обычная версия сайта
Информационный портал «Город Йошкар-Ола»

Сообщение о возможном установлении публичного сервитута

21.11.2024

Сообщение о возможном установлении публичного сервитута

Администрация городского округа «Город Йошкар-Ола», рассмотрев ходатайства ООО «Газпром газораспределение Йошкар-Ола», в соответствии со статьей 39.42 Земельного кодекса Российской Федерации, сообщает о возможном установлении публичного сервитута в целях эксплуатации линейного объекта системы газоснабжения:

1. «Газопровод к многоквартирному жилому дому поз. №31 по адресу: РМЭ, г. Йошкар-Ола, севернее дома № 122а по ул. Красноармейская (кадастровый номер земельного участка 12:05:0202007:4023», в отношении части земельного участка с кадастровым номером 12:05:0202007:1909, вид разрешенного использования: многоквартирные многоэтажные жилые дома 5-9 этажей, расположенного по адресу: Республика Марий Эл, г.Йошкар-Ола, ул.Березово (Приложение №1 );

2. «Газопровод к складу по адресу: РМЭ, г. Йошкар-Ола, ул.Ломоносова, д.60», в отношении части земельного участка с кадастровым номером 12:05:0403005:107 вид разрешенного использования: размещение многоквартирного дома, расположенного по адресу: Республика Марий Эл, г.Йошкар-Ола, ул Ломоносова, д. 49 (Приложение №2).

Заинтересованные лица в установлении публичного сервитута в течении 15-ти дней соответственно со дня опубликования и размещения настоящего сообщения подают заявления об учете их прав (обременений права) на земельные участки в комитете по управлению муниципальным имуществом администрации городского округа «Город Йошкар-Ола».

Ознакомиться с поступившим ходатайством об установлении публичного сервитута и прилагаемым к нему описанием местоположения границ публичного сервитута, а также подать заявление об учете прав на земельные участки возможно по рабочим дням с 8 часов 30 минут до 12 часов 30 минут и с 13 часов 30 минут до 17 часов 00 минут по адресу: Республика Марий Эл, г. Йошкар-Ола, проспект Гагарина, д. 2, каб.104, тел. 56-67-51.


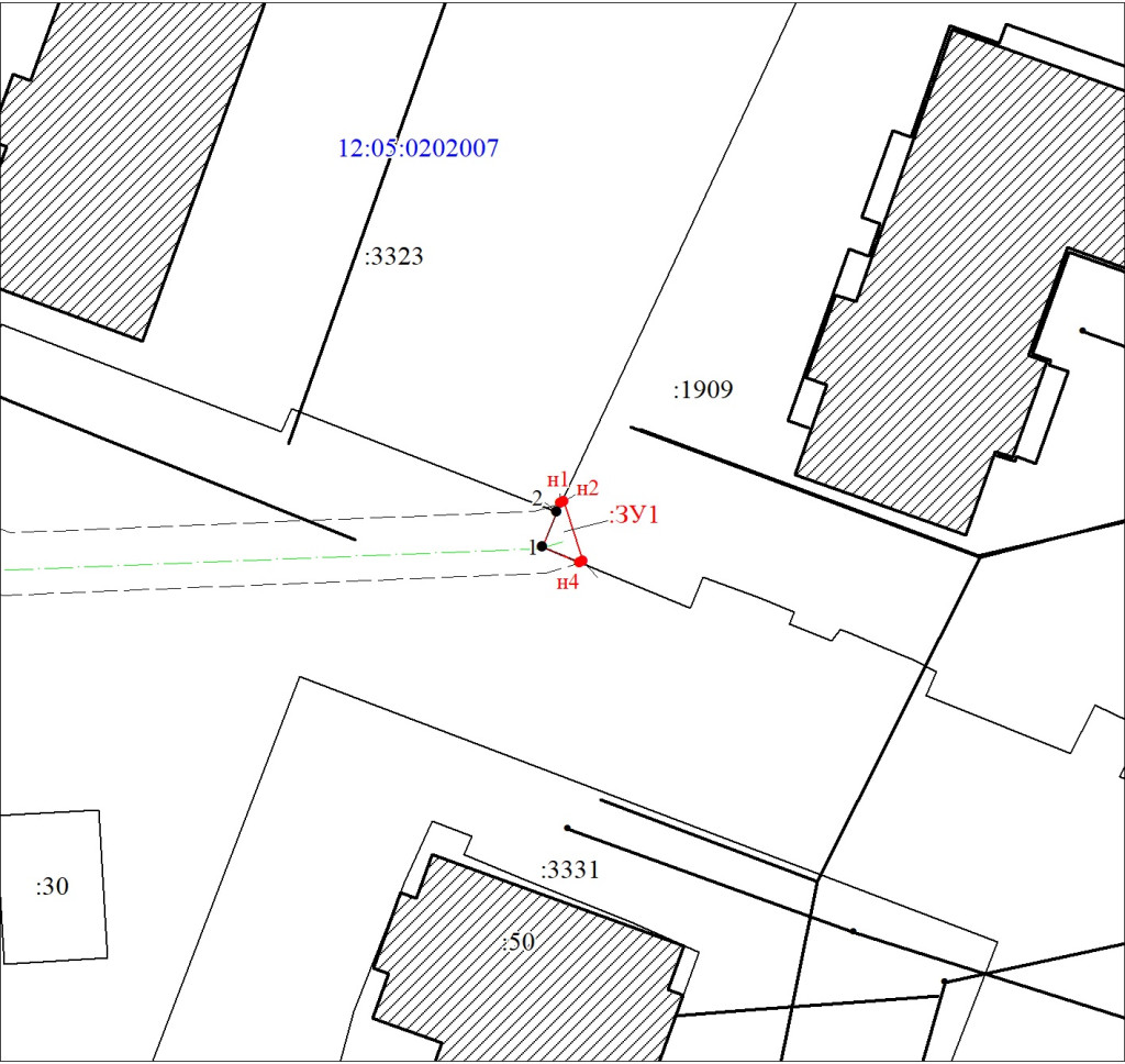
Приложение № 1

Схема границ предполагаемых к использованию земель или части земельного участка

на кадастровом плане территории для размещения объекта

«Газопровод к многоквартирному жилому дому поз. №31 по адресу: РМЭ, г. Йошкар-Ола, севернее дома №122А по ул. Красноармейская, (кадастровый номер земельного участка 12:05:0202007:4023)»

рабочим давлением не более 0,6 Мпа

по КН 12:05:0202007:1909

Условный номер земельного участка -

(указывается в случае, если предусматривается образование двух и более земельных участков)

Площадь земельного участка 8 м²

(указывается проектная площадь образуемого земельного участка, вычисленная с использованием технологических и программных средств, в том числе размещенных на официальном сайте федерального органа исполнительной власти, уполномоченного Правительством Российской Федерации на осуществление государственного кадастрового учета, государственной регистрации прав, ведение Единого государственного реестра недвижимости и предоставление сведений, содержащихся в Едином государственном реестре недвижимости, в информационно-телекоммуникационной сети "Интернет" (далее - официальный сайт), с округлением до 1 квадратного метра. Указанное значение площади земельного участка может быть уточнено при проведении кадастровых работ не более чем на десять процентов)

Обозначение характерных точек границ

Координаты, м

(указываются в случае подготовки схемы расположения земельного участка с использованием технологических и программных средств, в том числе размещенных на официальном сайте. Значения координат, полученные с использованием указанных технологических и программных средств, указываются с округлением до 0,01 метра)

X

Y

1

2

3

н1

365660.83

1268349.88

н2

365660.92

1268350.16

н3

365656.15

1268351.68

н4

365656.07

1268351.43

1

365657.32

1268348.40

2

365660.10

1268349.54

н1

365660.83

1268349.88

Схема расположения границ публичного сервитута

Sxema 21_11_2024(1).jpg

Масштаб 1:500


Приложение № 2

Схема границ предполагаемых к использованию земель или части земельного участка

на кадастровом плане территории для размещения объекта

«Газопровод к складу по адресу: РМЭ, г. Йошкар-Ола, ул. Ломоносова, д.60»

рабочим давлением не более 0,6 Мпа

по КК 12:05:0403005:107

Условный номер земельного участка -

(указывается в случае, если предусматривается образование двух и более земельных участков)

Площадь земельного участка 32 м²

(указывается проектная площадь образуемого земельного участка, вычисленная с использованием технологических и программных средств, в том числе размещенных на официальном сайте федерального органа исполнительной власти, уполномоченного Правительством Российской Федерации на осуществление государственного кадастрового учета, государственной регистрации прав, ведение Единого государственного реестра недвижимости и предоставление сведений, содержащихся в Едином государственном реестре недвижимости, в информационно-телекоммуникационной сети "Интернет" (далее - официальный сайт), с округлением до 1 квадратного метра. Указанное значение площади земельного участка может быть уточнено при проведении кадастровых работ не более чем на десять процентов)

Обозначение характерных точек границ

Координаты, м

(указываются в случае подготовки схемы расположения земельного участка с использованием технологических и программных средств, в том числе размещенных на официальном сайте. Значения координат, полученные с использованием указанных технологических и программных средств, указываются с округлением до 0,01 метра)

X

Y

1

2

3

н1

363723.52

1269086.12

н2

363720.52

1269082.12

н3

363725.42

1269078.21

н4

363728.53

1269082.12

н1

363723.52

1269086.12

Схема расположения границ публичного сервитута

Sxema 21_11_2024(2).jpg

Масштаб 1:500


Количество показов: 480
Дата создания: 21.11.2024 09:08:38
Дата изменения: 21.11.2024 09:08:38

Возврат к списку