Размер:
AAA
Цвет: CCC
Изображения Вкл.Выкл.
Обычная версия сайта
Информационный портал «Город Йошкар-Ола»

Публичные слушания назначены на 25 июля 2014

20.06.2014

На 25 июля 2014 года назначены публичные слушания по проекту решения Собрания депутатов городского округа «Город Йошкар-Ола» «О внесении изменений в Правила землепользования и застройки городского округа «Город Йошкар-Ола», утвержденные решением Собрания депутатов городского округа «Город Йошкар-Ола» от 24 декабря 2009 года № 30-V».

ПРОЕКТ РЕШЕНИЯ 
Собрания депутатов 
городского округа «Город Йошкар-Ола» 
пятого созыва 
________ сессия                                                           ___________ ____2014 г.

О внесении изменений в Правила землепользования и застройки городского округа «Город Йошкар-Ола», 
утвержденные решением Собрания депутатов городского округа «Город Йошкар-Ола» от 24 декабря 2009 года № 30-V

В соответствии со статьями 30, 31, 32, 33 Градостроительного кодекса Российской Федерации, статьей 28 Федерального закона от 6 октября 2003 г. № 131-ФЗ «Об общих принципах организации местного самоуправления в Российской Федерации», статьями 17, 24 Устава муниципального образования «Город Йошкар-Ола», Генеральным планом городского округа «Город Йошкар-Ола», утвержденным решением Собрания депутатов городского округа «Город Йошкар-Ола» от 14 июля 2009 года № 745-IV (в редакции решений Собрания депутатов городского округа «Город Йошкар-Ола» от 14 октября 2011 года № 323-V, от 23 апреля 2014 года  № 752-V), Положением о публичных слушаниях в муниципальном образовании «Город Йошкар-Ола», утвержденным решением Собрания депутатов городского округа «Город Йошкар-Ола» от 28 апреля 2010 года №102-V, Собрание депутатов городского округа «Город Йошкар-Ола» решило: 
1. Внести в карту «Карта градостроительного зонирования» Правил землепользования и застройки городского округа «Город Йошкар-Ола», утвержденных решением Собрания депутатов городского округа «Город Йошкар-Ола» от 24 декабря 2009 г. N 30-V  (в редакции решений Собрания депутатов городского округа «Город Йошкар-Ола» от 01 октября 2010 года № 169-V, от 27 июня 2012 года № 441-V, от 23 апреля 2014 года №753-V), следующие изменения: 
1) территории садовых товариществ «Милосердие»(рис.1 и рис.2), «Мичуринец»(рис. 1 и рис.2), «Тюльпан»(рис. 1 и рис.2), «Коммунальник»(рис. 1 и рис.2): зону «Зона застройки индивидуальными жилыми домами» (Ж-3) заменить зоной «Зона садоводств и дачных участков» (Ж-4); 

- территория садового товарищества «Надежда»(рис. 1 и рис.2): зону «Зона общественно-жилого назначения» (ОЖ) заменить зоной «Зона садоводств и дачных участков» (Ж-4); 

2) территория в районе п.Нолька(рис.1 и рис.2): зону «Зона прочих городские территории» (ПР-2) заменить зоной «Зона обслуживания объектов, необходимых для осуществления производственной и предпринимательской деятельности» (О-4); 

3) территория в районе Тарханово (рис.1 и рис.2), ограниченная ул.Школьная, пер.Молодежный и проездом от ул.Школьная до пер.Молодежный: зону «Зона застройки индивидуальными жилыми домами» (Ж-3) заменить зоной «Зона обслуживания объектов, необходимых для осуществления производственной и предпринимательской деятельности» (О-4); 
4) территория на пересечении Кокшайского проезда и ул.К.Маркса(рис.1 и рис.2): часть зоны «Зона озеленения специального назначения» (ПР-1) заменить зоной  «Зона производственно-коммунальных объектов IV-V классов опасности» (П-4); 

5) территория вдоль ул.Машиностроителей от ул.Зеленая до ул.Баумана(рис.1 и рис.2): зону «Зона учреждений здравоохранения и социальной защиты» (О-2) заменить зоной «Зона общественно-жилого назначения» (ОЖ); 

6) территория, расположенная по ул. Крылова, 53а(рис.1 и рис.2): зону «Зона прочих объектов транспортной инфраструктуры» (Т-3) заменить зоной «Зона производственно-коммунальных объектов IV-V классов опасности» (П-4); 

7) территория по ул.Тойдемара в микрорайоне «Звездный»(рис.1 и рис.2): часть зоны «Зона городских лесопарков, городских лесов» (Р-2) и часть зоны «Зона прочих городских территорий» (ПР-2) заменить зоной «Зона застройки индивидуальными жилыми домами» (Ж-3); 

8) территория на пересечении ул.К.Либкнехта и ул.Гайдара и ул.Сернурский тракт(рис.1 и рис.2): зону «Зона прочих объектов транспортной инфраструктуры» (Т-3), часть зоны «Зона городских парков, скверов, садов, бульваров» (Р-1) и часть зоны «Зона застройки малоэтажными и среднеэтажными жилыми домами» (Ж-2) заменить зоной «Зона общественно-жилого назначения» (ОЖ) и зоной «Зона объектов инженерной инфраструктуры» (Т-4); 

9) территория по левой стороне ул.Никиткино(рис.1 и рис.2): зону «Зона делового, общественного и коммерческого назначения» (О-1) заменить зоной «Зона застройки индивидуальными жилыми домами» (Ж-3); 

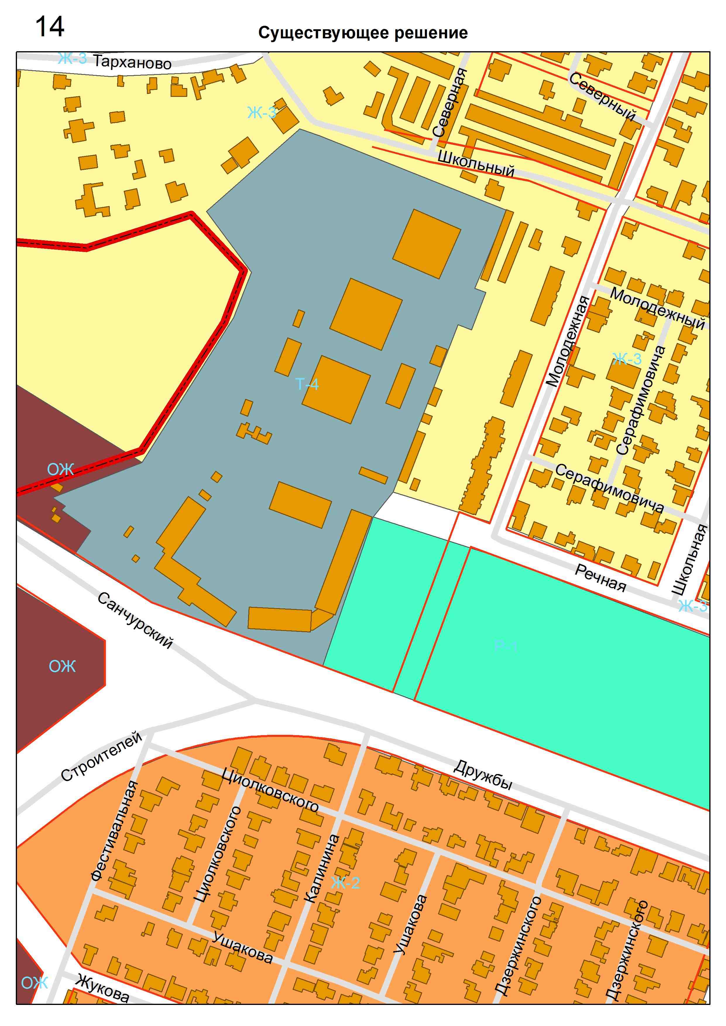
10) часть территории по ул.Дружбы (в створе проектируемой части ул.Молодежная)(рис.1 и рис.2): зону «Зона городских парков, скверов, садов, бульваров» (Р-1) заменить зоной «Зона объектов инженерной инфраструктуры» (Т-4); 

11) территория в границах земельного участка с кадастровым номером 12:05:0402001:5, местоположение: РМЭ, г.Йошкар-Ола, ул.Крылова. д.47(рис.1 и рис.2): зону «Зона объектов инженерной инфраструктуры» (Т-4) заменить зоной «Зона делового, общественного и коммерческого назначения» (О-1); 

12) часть территории вдоль Козьмодемьянского тракта, западнее пересечения с ул.Мышино(рис.1 и рис.2): зону «Зона городских парков, скверов, садов, бульваров» (Р-1) заменить зоной «Зона делового, общественного и коммерческого назначения» (О-1); 

13) в связи с проектированием объекта «Строительство магистральной улицы в створе ул.Кирова и ул.Строителей в г.Йошкар-Оле»(рис.1 и рис.2): 

- часть территории на пересечении улицы Кирова и Ленинского проспекта на нечетной стороне последнего, расположенной в зоне «Зона особо охраняемых природных территорий» (Р-6), заменить территорией общего пользования (в красных линиях проектируемой магистральной улицы); 
- территория, расположенная после места пересечения проектируемой магистральной улицы и железной дороги: часть зоны «Зона прочих объектов транспортной инфраструктуры» (Т-3) заменить территорией общего пользования; 
- территория, расположенная в районе пересечения проектируемой магистральной улицы и ул.Строителей: часть зоны «Зона прочих городские территории» (ПР-2) заменить территорией общего пользования; часть зоны «Зона обслуживания объектов, необходимых для осуществления производственной и предпринимательской деятельности» (О-4) заменить территорией общего пользования; 
- территория, находящаяся в  районе пересечения ул.Строителей и Элеваторного проезда: часть зоны «Зона производственно-коммунальных объектов IV-V классов опасности» (П-4) заменить территорией общего пользования; 
14) территория, ограниченная ул.К.Маркса, ул.Луначарского и правым берегом реки Малая Кокшага(рис.1 и рис.2): часть зоны «Зона спортивных комплексов и сооружений» (Р-4) заменить зоной «Зона делового, общественного и коммерческого назначения» (О-1). 

Изложить карту «Карта градостроительного зонирования» в новой редакции (прилагается). 
2. Опубликовать настоящее решение в газете «Йошкар-Ола» и разместить его на официальном сайте Собрания депутатов городского округа «Город Йошкар-Ола» в информационно-коммуникационной сети «Интернет» (www.gor-sobry-ola.ru). 
3. Настоящее решение вступает в силу после его официального опубликования. 
4. Контроль за исполнением настоящего решения возложить на постоянную комиссию по законности (О.А.Морозов).

Глава 
городского округа 
«Город Йошкар-Ола»                                                                            Л.Гаранин 



Количество показов: 2151
Дата изменения: 03.07.2014 08:09:29

Возврат к списку